Kiến trúc nhà phố mang phong cách hiện đại, trẻ trung luôn là hình thức thiết kế được ưa chuông trong năm 2018 và đang là xu hướng phổ biến dành cho nhiều gia đình trong tương lại. Bản vẽ thiết kế nhà ống 2 tầng 1 tum đẹp là môt trong hình mẫu kiến trúc tiêu biểu cho sự phổ biến đó. Với lối thiết kế kiến trúc đơn giản mà đẹp, tiết kiệm chi phí xây dựng, ngôi nhà dễ dàng nhận được sự yêu thích của nhiều khách hàng. Chắc chắn rồi, mời quý vị cùng tìm hiểu bản vẽ thiết kế của ngôi nhà chi tiết ngay dưới đây.
>> xem thêm: mẫu thiết kế nhà đẹp 200 triệu
Bản vẽ thiết kế nhà ống 2 tầng 1 tum
Đầu tiên, mời quý vị cùng xem vẻ đẹp của ngôi nhà qua các hình mẫu kiến trúc 3D mặt tiền nhà 2 tầng 1 tum mang phong cách hiện đại
Thiết kế nhà đẹp được thực hiện trên diện tích đất có mặt tiền rộng 4m, diện tích phổ biến cho nhiều ngôi nhà ở khu vực thành phố hiện nay. Tạo hình tổng thể mặt tiền được đưa ra thể hiện tính thẩm mỹ trong kiến trúc với sự chỉnh chu, vuông vức. Trong đó các gam màu nhẹ nhàng chủ đạo được bài trí hợp lý. Bản vẽ thiết kế nhà ống 2 tầng 1 tum đẹp sở hữu diện tích mặt tiền nhỏ vì thế trong ý tưởng kiến trúc, ngoài việc chú trọng đến tính thẩm mỹ thì kiến trúc sư còn bảo đảm sự hài hòa về mặt không gian, đưa gia đình tới sự thư giản, thoải mái nhất. Một ngôi nhà đẹp được hình thành với nhiều yếu tố từ vẻ đẹp thẩm mỹ cho đến không gian sống thoáng rộng và với phương án trình bày trên kiến trúc sư đã hoàn toàn làm hài long gia chủ.
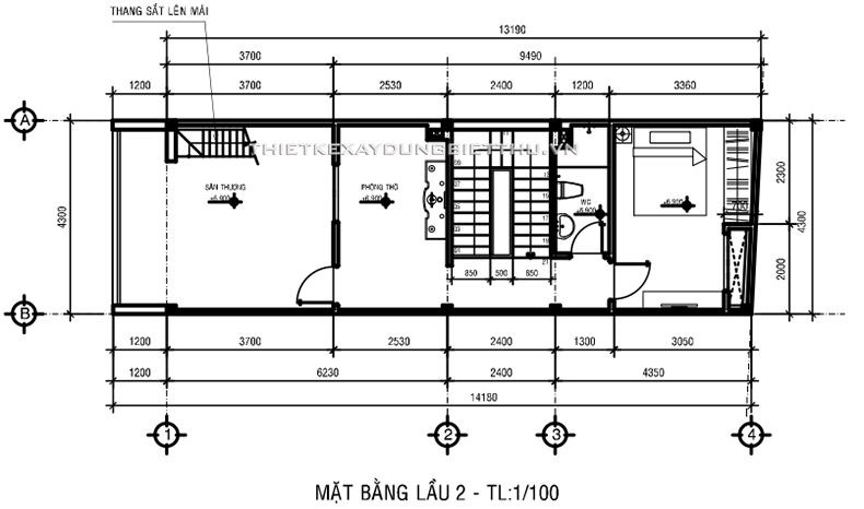
Mặt bằng mẫu thiết kế nhà ống 2 tầng 1 tum
Trên quy mô 2 tầng 1 tum ngôi nhà được thiết kế với yêu cầu tối ưu công năng sử dụng cho gia đình có 4 thành viên với 3 phòng ngủ cùng các công năng đầy đủ tiện nghi khác.
Thiết kế xây dựng nhà đẹp ở tầng trệt phía trước trừa sân rộng rãi dùng làm khu vực để xe. Công năng gồm có phòng khách, phòng bếp kết hợp bàn ăn và một phòng vệ sinh chung.
Ở khu vực tầng 2 sẽ là nơi được bố trí với 2 phòng ngủ có kết hợp 2 phòng vệ sinh riêng bên trong thiết kế đáp ứng sự nghỉ ngơi cho các thành viên trong gia đình. Đưa ban công ra phía trước tăng tính thẩm mỹ cho góc nhìn từ mặt tiền đồng thời góp phần mang lại không gian sống thoáng mát.
Cuối cùng không gian tầng tum của mẫu nhà đẹp sẽ dành bố trí một phòng ngủ, một phòng vệ sinh và một phòng thờ. Không gian sân thượng rộng rãi gia chủ có thể tận dụng bố trí hệ tiểu cảnh sân vườn hoặc trồng rau sạch, tùy thích.
Ngôi nhà với phương án bố trí vật dụng trên đảm bảo sẽ mang tới không gian sống tuyệt vời cho gia đình có 4 thành viên. Hi vọng bản vẽ thiết kế nhà ống 2 tầng 1 tum phong cách hiện đại trên sẽ mang tới cho quý vị những thông tin tham khảo hữu ích. Chúc quý vị luộn thành công và gặp nhiều may mắn trong cuộc sống, cảm ơn đã dành thời gian tham khảo bài viết.




Không có nhận xét nào:
Đăng nhận xét